top of page
Piscina Verão Azul 28.000 L
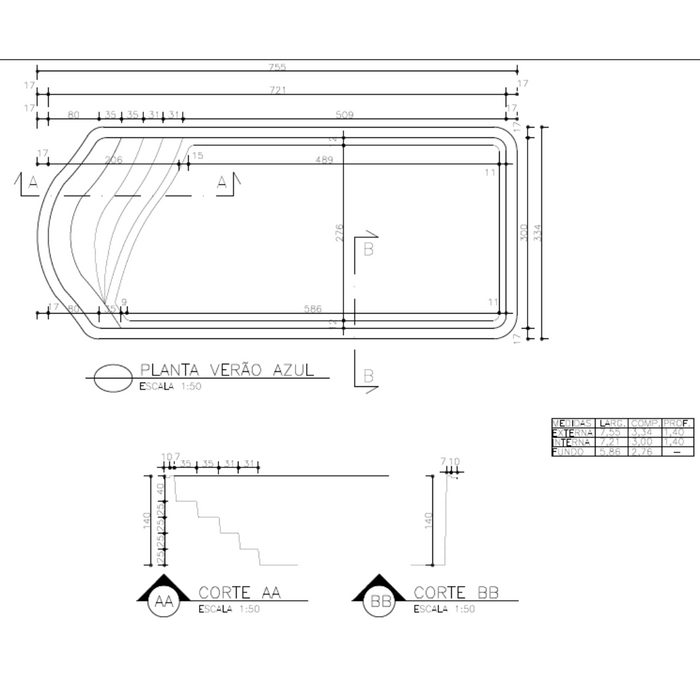
Apresentamos a deslumbrante Piscina Verão Azul 28.000 L: Com medidas externas de 7,55m x 3,34m x 1,40m e medidas internas de 7,21m x 3,00m x 1,40m, oferece um espaço amplo e relaxante para momentos de lazer e diversão. Com uma capacidade volumétrica aproximada de 28.000 litros, esta piscina é perfeita para desfrutar de momentos refrescantes e criar memórias inesquecíveis com a família e amigos. As abas anti-infiltrações garantem durabilidade e segurança para sua piscina.
Medida externa 7,55 x 3,34 x 1,40 m
Medida interna 7,21 x 3,00 x 1,40 m
(*) CAPACIDADE VOLUMÉTRICA APROXIMADA
(**) ABAS ANTI-INFILTRAÇÕES
Garantia de qualidade
Escavação
Frete e instalação
Assistência personalizada
bottom of page






